Severe Weather Expected Tonight!
Severe thunderstorms are expected this evening in North Texas. Heavy rainfall may result in some areas picking up 4 to 5 inches of rain through Saturday.
Continue reading

This site is intended to keep the public, our residents, District Directors and consultants connected and informed. Our goal for the site is to become a trusted source for information about the District, its operations, amenities, and activities. We encourage you to visit our site regularly to learn more about the District.
Position 1; Vice Chairperson
Term expires 2028
Position 2; Secretary
Term expires 2028
Position 3; Director
Term expires 2026
Position 4; Director
Term expires 2026
Position 5; Chairperson
Term expires 2026
Severe thunderstorms are expected this evening in North Texas. Heavy rainfall may result in some areas picking up 4 to 5 inches of rain through Saturday.
Continue reading
The Board of Viridian MMD will hold a General Board Meeting.
Please be advised of a temporary road closure on Viridian Park Lane!
This post summarizes the key topics discussed and decisions made during the Viridian MMD Board of Directors meeting on September 9, 2025.

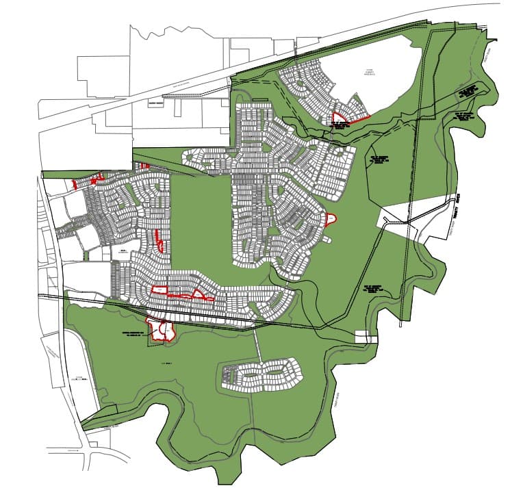
Located north of Interstate 30 and west of State Highway 360 in Arlington, Texas, the District consists of approximately 2000 acres of land with more than half of that area committed to greenspace. The development includes five major lakes, 500 acres of open space and an additional 500 acres of lakes, rivers, streams and wetlands. The community has been named a “https://auduboninternational.org/signature-sanctuary-program/Certified Gold Signature Sanctuary” by the https://auduboninternational.org/Audubon International in recognition of its commitment to wildlife and environmental stewardship.
For more detailed information about Viridian MMD, visit the https://www.viridianmmd.com/aboutAbout Us page.
For a quick glance, click the map below to show an expanded view of the District. The area colored in green is owned and/or maintained by Viridian MMD. For a more detailed and interactive map view, please visit the https://www.viridianmmd.com/mapDistrict Map page.